- Ufficio
- GARA IN CORSO
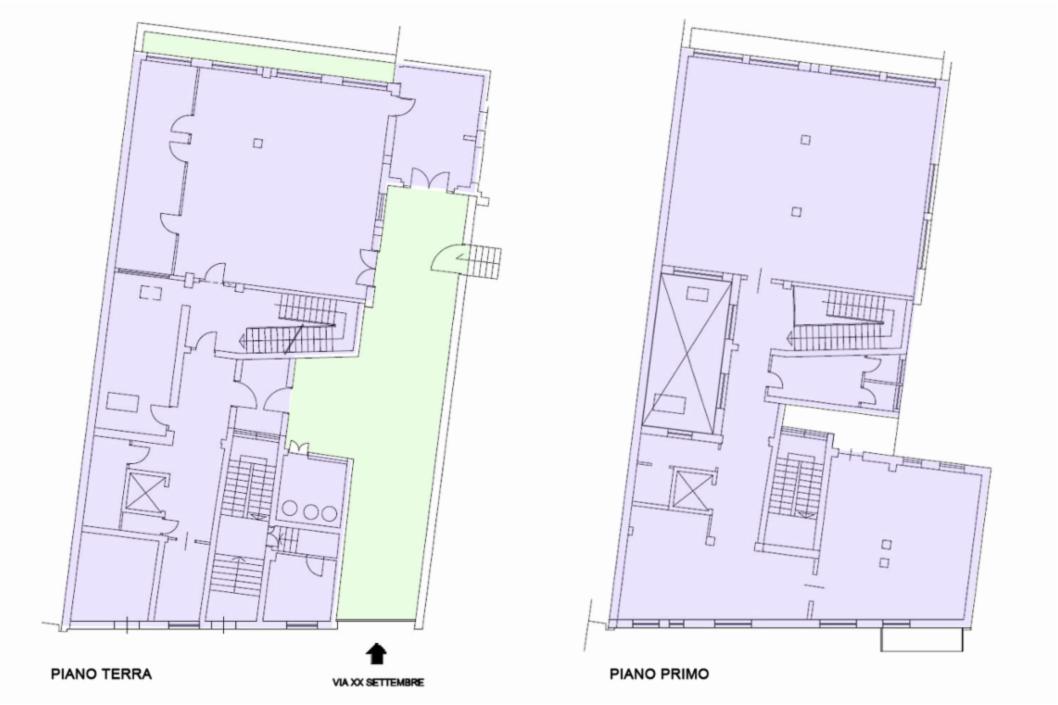
Via XX Settembre, nn.5-7-9 - ANDRIA (€ 590.000)
Vuoi maggiori informazioni?
Lasciate i vostri dati e sarete ricontattati quanto prima da un nostro incaricato
Descrizione
Nel centro della città immobile cielo-terra ad uso terziario che si sviluppa su cinque livelli fuori terra con copertura praticabile e locale tecnico ospitante una cabina elettrica al piano terra. L'immobile è costituito da un piano terra di circa 382 mq (incluso locale cabina elettrica) oltre cortile di 102 mq e una intercapedine di 12mq; un primo piano di circa 397 mq oltre terrazzo e un balcone per circa 21 mq totali; un secondo piano di circa 175 mq oltre terrazzino e tre balconi per circa 63 mq; un terzo piano di circa 175 mq oltre quattro balconi per circa 14 mq; un piano quarto di circa 43 mq costituito da due locali tecnici oltre lastrico solare di 120 mq.I piani sono collegati tramite due vani scala (non per tutti i piani) e da un impianto di elevazione che serve fino al terzo piano.
Il termine perentorio per la partecipazione alla gara, con richiesta obbligatoria di informazione e di registrazione al Portale è fissato entro le ore 12:00 del giorno 07/04/2026.
Le Offerte dovranno pervenire entro le ore 12:00 del giorno 27/04/2026.
Le modalità per la visita dell’immobile e le informazioni per partecipare alla gara sono definite nel disciplinare di vendita consultabile al sito: www.posteprocurement.it nella sezione bandi e avvisi a cui si rimanda.
Il termine perentorio per la partecipazione alla gara, con richiesta obbligatoria di informazione e di registrazione al Portale è fissato entro le ore 12:00 del giorno 07/04/2026.
Le Offerte dovranno pervenire entro le ore 12:00 del giorno 27/04/2026.
Le modalità per la visita dell’immobile e le informazioni per partecipare alla gara sono definite nel disciplinare di vendita consultabile al sito: www.posteprocurement.it nella sezione bandi e avvisi a cui si rimanda.
| Caratteristiche e dati principali | |
|---|---|
| Codice annuncio | BAX13900 |
| Contratto | Vendita |
| Prezzo | € 590.000 |
| Data scadenza gara | 7 apr 2026 |
| Indirizzo | Via XX Settembre, nn.5-7-9 |
| Comune | ANDRIA |
| Provincia | BARLETTA-ANDRIA-TRANI |
| Regione | PUGLIA |
| Categoria | Ufficio |
| Superficie Lorda Coperta | 1.172 m2 |
| Area Esterna | 332 m2 |
| Numero Piani | 5 |
| CieloTerra / Porzione | Cielo Terra |
| Stato Occupazionale | Libero |
| Classe Energetica | G |
Localizzazione
Visualizza
la zona dove si trova l'immobile.







